随着城市现代化节奏的不断推进,城市景观设计也在不断更新,人们对城市公园的诉求,已不再停留于最初的休憩功能上,而是更加注重多样性、生态性与包容性。针对新形势下的城市公园景观设计,中机国际风景园林所设计团队以杉木路绿带景观设计项目为蓝本,在研究如何让自然与城市相互渗透,构建自然与城市共生体的问题上进行了创新性与引领性的探索,创造了一个让业主与民众满意,让功能与景观结合,让自然与城市交融的社区公园,是极具代表性和先进性的城市公园设计范例。
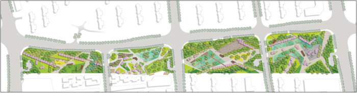
杉木路绿带景观设计项目位于湖南省长沙市芙蓉区隆平新区,远大路以南,人民路以北,杉木路以西,面积约7.66万平方米,是隆平新区“绿手指”绿地规划的重要组成部分。公园用地呈带状分布,被市政道路割裂为四个独立的地块,相互之间缺乏连接性,整体地势呈北高南低,中部为保留山体,现状大树高大挺拔、枝繁叶茂。
契合隆平新区“绿手指”绿地规划的理念,贯彻将绿化引入城市、建立多级别城市公共绿地空间相连结的思想,设计团队从尊重项目用地的历史形态出发,保留反映隆平新区地域特色和文化特征的田园风光,将自然田地的原始肌理和城市建设的发展肌理相结合,让自然与城市在空间上相互渗透,使城市景观回归到最初的野趣自然,同时运用可持续发展的海绵城市生态理念作为改善自然与城市关系的纽带,使公园形成一个极具生命力的自然与城市共生体。

“绿手指”上位规划图

肌理演变图

景观设计总平面图
“阡陌交通,都市田园”
自然原始的山体,枝繁叶茂的大树,葱郁静谧的浓荫,这是杉木路绿带得天独厚的自然优势。设计通过对现状的充分保留利用,将自然的山地风貌与城市空间互为延展,将硬质铺地渗透到自然的绿色基底里,重现阡陌交通的生活场景,让都市人置身在自然的怀抱,感受都市田园的野趣。
公园整体采用线性的构图方式整合周边用地、组织空间布局、梳理交通脉络。通过主次游路的衔接,将四个独立地块从功能布局及交通流线上紧密联系,保持视觉上与功能上的延续,使公园形成统一的整体,体现归属感。


“人居环境,活力社区”
项目东西两侧为住宅小区,人流量大,对公园集散活动、绿化休闲的需求迫切。设计从人文关怀的角度出发,深入了解周边人群的基础需求,以满足功能实用性为根本出发点,打造一个集交流沟通、休闲游憩、运动健身于一体,充满动感、活力、人文关怀的社区公园。
整体布局依山就势、因地制宜,结合现状山体设置登山步道,根据保留大树布置亭廊构架,沿水岸架设栈道设置平台,集中布置儿童活动场地和羽毛球场,合理设置配套用房,满足周边居民集散和休闲的多样需求。


“雨水花园,生态示范”
项目地块附近亚大路因地势低洼,且排水系统不够通畅,下雨时经常性积水,为缓解该地块的雨洪压力,设计秉持着海绵城市低影响开发的理念,结合用地原有低洼区域作为雨水花园,通过对雨水的渗透、储存、调节、传输、净化等作用,有效控制径流总量、径流峰值和径流污染,使之成为解决城市雨洪问题、构建海绵城市的基本单元,让每一滴落下的雨水都变成资源。
公园内除地面使用透水材料外,还通过人工挖掘浅凹绿地,设置生态草沟、前置塘与植被缓冲带等一系列措施,汇聚并吸收地面的雨水,通过植物的层层过滤使雨水得到净化,并逐渐渗入土壤以涵养地下水源。雨水花园除了具有雨水调蓄功能外,设计还通过观赏草及水生植物的组团搭配,赋予雨水花园较高的观赏价值,营造芳草萋萋、草长莺飞的田园之美。


杉木路绿带景观设计项目在整个建设过程中,设计团队通过多专业协同合作,以景观作为纽带,打破专业壁垒,从设计到施工全过程跟踪服务,不断挑战技术创新,创造出极具“包容性”和“生命力”的城市公园景观。宜居的城市必定是与自然共生的城市,让我们在城市中与自然相遇......